Твои объявления
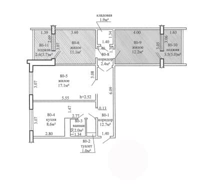
Продается доля в трехкомнатной квартире, в нее входит комната 17,1 кв.м, в общем пользовании: кухня, раздельный санузел, коридор и кладовая. В комнате установлены стеклопакеты, окна выходят на восток. Входная дверь - металлическая, межкомнатные – деревянные. Квартира в жилом состоянии: полы – ламинат, потолки высотой 2,50 м, стены оклеены обоями с рисунком. Санузел облицован керамической плиткой. Домофон, два пассажирских лифта. Сособственником доли квартиры является женщина.

Продается доля в трехкомнатной квартире, в нее входит комната 17,1 кв.м, в общем пользовании: кухня, раздельный санузел, коридор и кладовая. В комнате установлены стеклопакеты, окна выходят на восток. Входная дверь - металлическая, межкомнатные – деревянные. Квартира в жилом состоянии: полы – ламинат, потолки высотой 2,50 м, стены оклеены обоями с рисунком. Санузел облицован керамической плиткой. Домофон, два пассажирских лифта. Сособственником доли квартиры является женщина.

📍 Брест Орловская ул. 79

Комнат
3
Площадь
75.1 м²
Этаж
8/12

Описание

Брест Орловская ул. 79 · 3 комн., 75.1 м², 8/12 эт.

Похожие объявления

Источник: Realt.by · опубликовано 24 мая 2025 г.